Warszawa, Mokotów

Wohnung 41 m²

41 meter
2 zimmer
3 Etage

Verkäufe

Preis

882 000 PLN

preis pro m²

21 491 PLN

Modern 2-room apartment in the prestigious Modern Mokotów investment – Warsaw | 41,04 m² | DOMANIEWSKA STREET – SŁUŻEWIEC | BALCONY

We offer for sale an apartment in developers finish standard in the modern Modern Mokotów investment, a renowned developer, located on Domaniewska Street. It’s an ideal place for those who value comfortable living in the heart of Mokotów – with quick access to work, shops, entertainment, and public transport. The investment was designed with comfort and aesthetics in mind, with plenty of greenery surrounding the estate.

Apartment description:
•Address: ul. Domaniewska / Postępu / Building F2 – Modern Mokotów, Służewiec
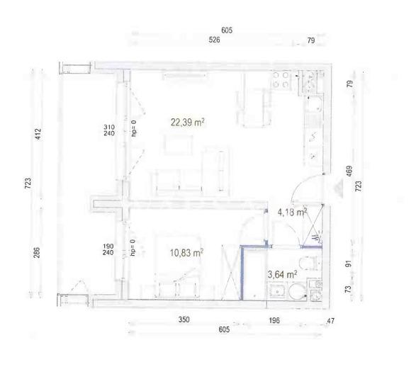
•Area: 41,04 m²
•Layout: 2 rooms (apartment with the following layout: living room with kitchenette and balcony access: 22,56 m² , bathroom 3,75m² , bedroom 10,42 m², hall 5,32 m2)
•Floor: 3/10 (with elevator)
•Window and balcony exposure: western
•Condition: developers finish – complete freedom to arrange the interior according to your needs
•Parking space: in the underground garage, additional fee: PLN 50,000.
•Purchase of the property on the basis of assignment of the development agreement.
•Great investment potential — excellent option for rental.

Location Advantages:
• Westfield Mokotów – one of the largest shopping centers in Warsaw – in the immediate vicinity, opposite the development. Shops, restaurants, a cinema, and a full service infrastructure. This is a huge convenience for families and active individuals – convenience and time savings.
• Proximity to the Służewiec (Mordor) office zone – quick commute or walk to work. The concentration of workplaces has a positive impact on rental demand.
• Excellent transport links: metro (M1 line), numerous bus and tram stops (from Wołoska Street), quick access to the SKM (Fast Urban Rail) train.
• Extensive infrastructure: shops, restaurants, schools, kindergartens, medical facilities.
• Green surroundings and modern architecture ensure a comfortable life.

Description of the Modern Mokotów development:

The development was designed with residents; comfort and a high quality of everyday life in mind.
• Modern architecture with elegant facades,
• Ample greenery and carefully designed common areas,
• A safe patio with a playground and relaxation area,
• High-quality finishing materials,
• Quiet and intimate buildings with elevators and an underground garage,
• Gated and monitored community with bicycle storage available,
• Eco-friendly approach – shared paths and roof gardens for residents.

Why is it worth it?

This apartment is an excellent choice for both those seeking a comfortable place to live in a prestigious location and for investors planning to buy to rent – the area generates huge demand thanks to the combination of office and commercial zones and excellent transport links.

As a real estate agency, we charge a commission for our brokerage services. This announcement is for information purposes only and does not constitute an offer within the meaning of Article 66 § 1 of the Civil Code.

Preis

882 000 PLN

Fläche
41.04 m²
Etage
3
zimmer
2
preis m²
21 491 PLN
Parkplatz
Ja

Du bist an dieser Immobilie interessiert

kontaktiere uns für einen Termin.