Warszawa, Mokotów

Wohnung 41 m²

41 meter
2 zimmer
0 Etage

Verkäufe

Preis

845 000 PLN

preis pro m²

20 520 PLN

READY TO TAKEOVER:
Modern 2-room apartment in the prestigious Modern Mokotów investment – Warsaw | 41.18 m² | DOMANIEWSKA STREET – SŁUŻEWIEC | GARDEN, PARKING SPACE | HIGH 382 cm !!!

We offer for sale a unique, 382 cm high apartment in developer standard in the modern Modern Mokotów investment, a renowned developer, located on Domaniewska Street.
It is an ideal place for people who value the comfort of living in the heart of Mokotów – with quick access to work, shops, entertainment and transport. The investment was designed with comfort and aesthetics in mind, with plenty of greenery around the estate.

Apartment description:
•Address: ul. Domaniewska / Postępu / Building F2 – Modern Mokotów, Służewiec
•Area: 41.18 m²
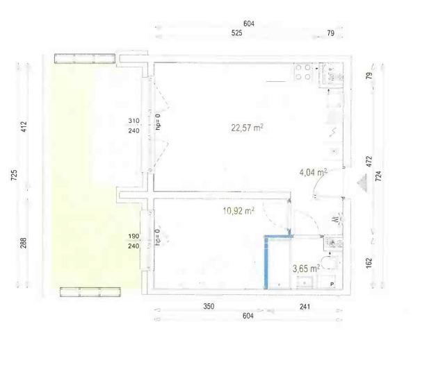
•Layout: 2 rooms (apartment with the following layout: living room with kitchenette and access to the terrace and garden: 22.57 m², bathroom 3.65 m², bedroom 10.92 m²)
•Floor: 0/10
•Window and terrace exposure: west
•Condition: developer’s finish – complete freedom to arrange the interior according to your needs
•Parking space: in the underground garage, additional fee PLN 50,000.
•Purchase of the property on the basis of assignment of the development agreement.
•Great investment potential – excellent option for renting.
•PROMOTIONAL PRICE – not subject to further negotiation

We also have more apartments in this investment in our offer. Please contact us.
Location Advantages:
•Westfield Mokotów – one of the largest shopping centers in Warsaw – in the immediate vicinity, opposite the development. Shops, restaurants, a cinema, and a full service infrastructure. This is a huge convenience for families and active individuals – convenience and time savings.
• Proximity to the Służewiec (Mordor) office zone – quick commute or walk to work. The concentration of workplaces has a positive impact on rental demand.
• Excellent transport links: metro (M1 line), numerous bus and tram stops (from Wołoska Street), quick access to the SKM (Fast Urban Rail) train.
• Extensive infrastructure: shops, restaurants, schools, kindergartens, medical facilities.
• Green surroundings and modern architecture ensure a comfortable life. Description of the Modern Mokotów development: The development was designed with residents comfort and a high quality of everyday life in mind.
• Modern architecture with elegant facades,
• Ample greenery and carefully designed common areas,
• A safe patio with a playground and relaxation area,
• High-quality finishing materials,
• Quiet and intimate buildings with elevators and an underground garage,
• Gated and monitored community with bicycle storage available,
• Eco-friendly approach – shared paths and roof gardens for residents.

Why is it worth it? This apartment is an excellent choice for both those seeking a comfortable place to live in a prestigious location and for investors planning to buy to rent – the area generates huge demand thanks to the combination of office and commercial zones and excellent transport links. As a real estate agency, we charge a commission for our brokerage services. This announcement is for information purposes only and does not constitute an offer within the meaning of Article 66 § 1 of the Civil Code.

Preis

845 000 PLN

Fläche
41.18 m²
Etage
0
zimmer
2
preis m²
20 520 PLN
Parkplatz
Ja

Du bist an dieser Immobilie interessiert

kontaktiere uns für einen Termin.